这套居所以**“柔和质感+极简线条”**为核心,将治愈感融入每一处空间,让家成为卸下疲惫的温柔容器。
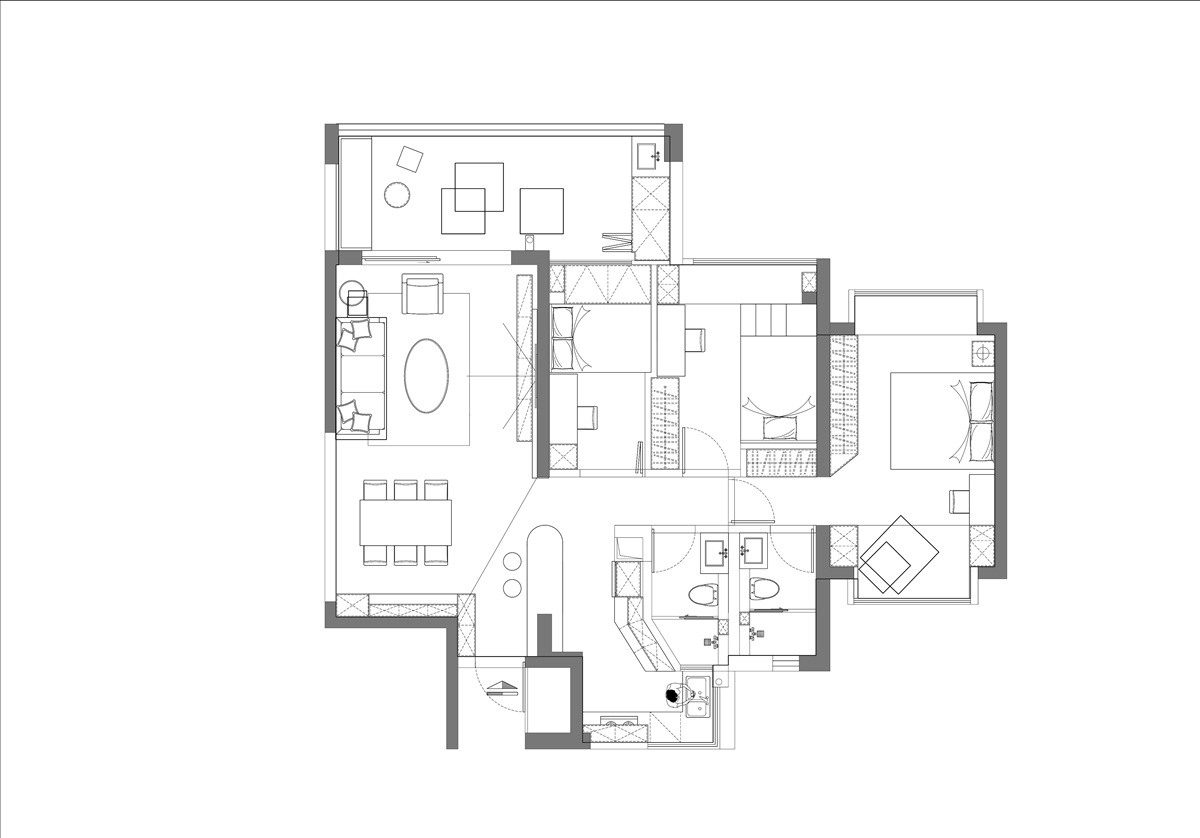
• 客厅:松弛感的始发站
米白色毛绒沙发包裹住慵懒时光,异形茶几以圆润弧度消解刻板,搭配抽象艺术挂画与暖调落地灯,阳光透过薄纱窗帘漫入时,空气里满是“什么都不做也很惬意”的松弛因子
。
。
• 餐厨区:烟火里的精致仪式
开放式餐厨以白调橱柜营造清爽感,个性吊灯如艺术装置点亮空间;不同材质的餐椅混搭出随性趣味,咖啡器具与鲜花错落陈列,让下厨、用餐都成为值得慢享的日常仪式。

• 卫浴间:理性与洁净的共生
高级灰调瓷砖搭配黑框玻璃隔断,镜柜与隐藏式收纳最大化利用空间,灯光设计柔和不刺眼,洗漱、沐浴时皆能感受“秩序感”带来的身心洁净。

• 主卧:安眠的温柔茧房
木质百叶床头呼应浅木色地板,柔光吊灯与窗畔飘窗营造静谧氛围,大面积柜体满足收纳需求,每一晚都在“简洁无冗余”的舒适感中,坠入深度安眠。

• 儿童房:童趣与成长的游乐场
薄荷绿“树屋式” bunk 床是童年的魔法空间,阶梯式收纳与拱形玩耍区,让睡眠、储物、游戏自然融合,柔软玩偶与圆润设计,守护孩子天马行空的成长时光。

这套家的设计,没有冗余的装饰,却在每一处细节里藏着“为生活减负、为心境留白”的巧思,让日常的每一刻都浸润着松弛与温暖。

199-2653-0442





















































